
閥門強度試壓機是把閥門接入已安裝固定好的試驗臺相應閉口,后閉閥加壓至試驗壓力進行閥門殼體強度試驗,閥門強度試驗壓力是公稱壓力的1.1倍的整數值。輸送劇毒流體介質、有毒介質、可燃介質管道的閥門;輸送設計壓力>1MPa或設計壓力≤1MPa且設計溫度≤-29℃或>186℃的非可燃介質、無毒介質管道的閥門都應逐個進行殼體液壓試驗,不合格者不得使用。羅浮閥門集團浙江濟南西高泵閥有限公司建議閥門生產廠家每臺必須做閥門強度試壓,用戶單位抽樣檢查閥門強度試壓。
YFA-F型閥門強度試壓機的試驗介質采用潔凈水或煤油。對于奧氏不銹鋼閥門,水的氯含量不得超過25PPm。

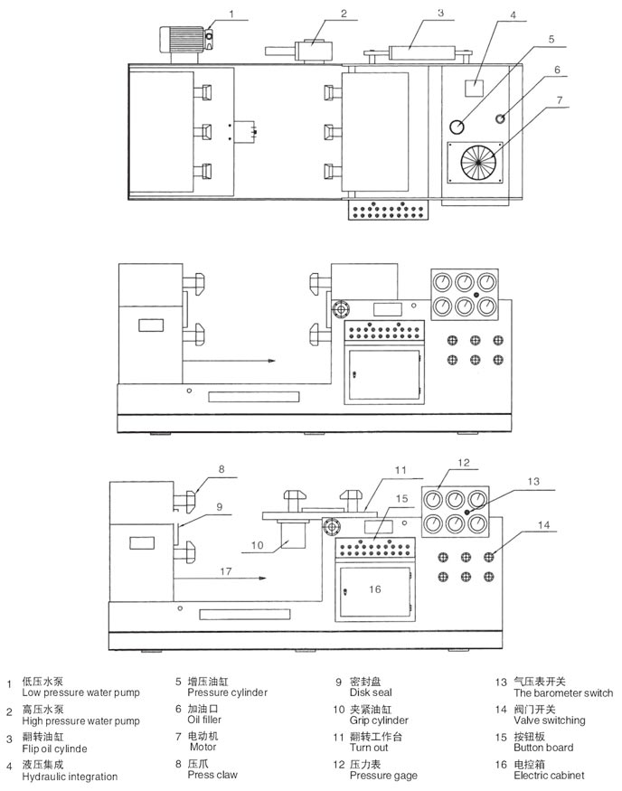
閥門強度試壓機的使用指南
濟南閥門液壓測試臺的外形結構示意圖:

1.氣體閥門強度試壓
將被測閥門半開,開啟控制模塊上“下盲板閥進氣閥”、“下盲板進氣保壓閥”,氣體進入閥門,待其充滿后,可觀察到“下盲板氣壓表”指示在設定壓力位置,關閉控制模塊上“下盲板進氣閥”,此時閥門進入保壓測試階段。也可通過觀察“下盲板氣壓表”的掉壓情況判斷閥門殼體的泄露。


2.液體閥門強度試壓
將“水泵開關”開啟,水泵指示燈亮,低壓水泵工作;將被測閥門半開,開啟控制模塊上“下盲板進水閥”,低壓水進入閥門,待其充滿后,可觀察到“水壓增壓表”指示在1MPa位置;按閥門規格選定高壓水的壓力值,調節電接點壓力表即“水壓增壓表”到該值,開啟“增壓進氣開關”,氣液增壓泵開始工作,當壓力值到達設定值后,增壓泵停止工作,關閉“增壓進氣開關”,關閉控制模塊上“下盲板進水閥”,此時進入閥門保壓測試階段。
測試完成后,開啟試壓下盲板座上的排水閥,在上盲板座通入壓縮空氣,將試壓液體吹出閥門。
3.閥門強度試壓機的電器部分操作說明:
1. 油泵控制:按“油泵啟動”按鈕,油泵運行;按“油泵停止”按鈕,油泵停止運行。
2. 橫移油缸控制:按“移出”按鈕,橫移油缸伸出,觸碰到接近開關XL01后,橫移油缸停止運動;按“移進”按鈕,橫移油缸縮回,觸碰到接近開關XL02后,橫移油缸停止運動;無論何時,按“停止”按鈕,橫移油缸立即停止運動。
3. 壓緊油缸控制:同時按右上角“壓緊”按鈕和左下角“壓緊”按鈕,壓緊油缸伸出。按“松開”按鈕壓緊油缸縮回。無論何時,按“停止”壓緊油缸立即停止運動,按下任意一個“壓緊”按鈕,壓緊缸都不得動作。
4. 工作臺壓緊時,按“工作臺移進/工作臺移出”按鈕,橫移油缸不能動作。
5. 照明和離心泵開關為復合開關,即按下工作,再按下則停止工作。
6. 急停開關按下時,須關閉電源,切斷所有液壓、水、氣,包括液壓泵、水泵、氣控電磁閥等。
7. 閥門強度試壓機系統報警處理:當濾油器堵塞時,濾油器報警指示紅燈亮,提示需更換濾芯。當油箱油位過高或過低時,油位高指示燈亮,油泵不能啟動。
4.閥門強度試壓抽樣檢驗
設計壓力≤1MPa且設計溫度為≤-29℃或>186℃的非可燃介質、無毒介質用閥門,應從每批抽10%且不少于一個,進行液體壓力試驗,當不合格時,應再抽查20%,仍有不合格時,則該批閥門不得使用。
公稱壓力<1MPa且公稱直徑≥600mm的閘閥,可不單獨進行液體壓力試驗,可在系統試壓時進行檢查。
